Local commercial – 69003 LYON 3413€
Ref: 1096350-0L51 AVENUE MARÉCHAL DE SAXE, 69003 LYON
LES INFORMATIONS ESSENTIELLES
- LOYER Mensuel (HC - HT)3 413€
- DROIT AU BAILAucun
- HONORAIRES (À LA CHARGE DU LOCATAIRE)Non communiqué
- DETAIL DÉPÔT DE GARANTIE3 mois de loyer HT/HC
- TYPE DE BAIL9 ans
- Surface131m2
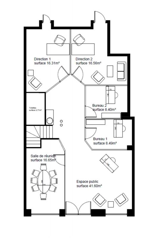
DESCRIPTIF DE VOTRE LOCAL
OMNIUM vous propose à la location ce local de 131 m² (107 m² en rez-de-chaussée et 24 m² en sous-sol) avec vitrine sur rue, excellente visibilité. Localisation idéale, à deux pas du Cour Lafayette ; entre les quartiers de Saxe et Foch et à proximité de la Part-Dieu. Locaux en très bon état, espace d’accueil, cuisine, plusieurs bureaux cloisonnés (amovibles) et salle de réunion.
Proche des commerces, restaurants et transports.
Votre contact : Mathieu PAREDES
Directeur Département Commerces -Associé
06 12 77 67 54
Rez-de-chaussée avec vitrine sur rue
Sécurisé – Caméras de surveillance
4 bureaux sur cour
Espace d’accueil
Salle de réunion
Cuisine
Sanitaires privatifs
Faux plafond
Luminaires encastrés
Parquet
Cloisons amovibles
Chauffage électrique
Câblage informatique
Surface RDC : 107 m²
Situation/Transports :
Métro B : Place Guichard
Métro A : Foch
Tram T1 : Saxe-Préfecture
Bus Arrêt Saxe-Lafayette
Bus C3 : Vaulx – Gare Saint-Paul
Bus C4 : Cité Internationale – Jean Macé
Bus C13 : Grange Blanche – Montessuy Gutenberg (Caluire)
Bus C14 : Jean Macé – Les Sources (Ecully)
Bus 27 : Villeurbanne Centre – Vieux Lyon
Bus Autres lignes à proximité : C5, C9, C25, 9, 38, 132, 171
Stations vélo’V
SNCF Accès Gare TGV Lyon Part-Dieu 5 min via métro B
SNCF Accès Gare TGV Lyon Perrache 10 min via métro A
Dépot de garantie : 3 mois de loyer HT/HC
Explorez des locations à proximité
VOIR TOUTES LES LOCATIONS
Les questions à se poser avant de louer son local commercial
On ne répond pas à toutes vos questions ?
Posez-nous votre question !
Posez-nous votre question !
Est-ce que l'emplacement est approprié ?
- Tenez compte de la proximité des clients potentiels. Est-ce que l’emplacement est facilement accessible depuis les zones résidentielles ou de passage fréquent ?
- Étudiez la visibilité de votre entreprise depuis la rue ou dans le centre commercial, le cas échéant.
- Considérez la concurrence dans la région et si votre entreprise sera en mesure de se démarquer.
Quel est le coût du loyer ?
- Assurez-vous de comprendre le coût total du loyer, y compris les charges, les taxes et autres frais.
- Prévoyez des augmentations de loyer potentielles dans le bail et tenez compte de l’inflation.
- Évaluez si le loyer est compétitif par rapport à d’autres locaux similaires dans la région.
Quelle est la durée du bail ?
- Un bail à long terme peut offrir une stabilité à long terme, mais il peut limiter votre flexibilité.
- Un bail à court terme peut être plus flexible, mais vous devrez renégocier plus fréquemment et pouvez être soumis à des augmentations de loyer plus fréquentes.
Quelles sont les conditions de location ?
- Assurez-vous de comprendre les obligations en matière d’entretien et de réparations. Qui est responsable de quoi ?
- Vérifiez les conditions relatives à l’assurance, y compris si vous devez souscrire une assurance responsabilité civile.
Quels sont les aménagements nécessaires ?
- Si des rénovations sont nécessaires, obtenez des devis et demandez si le propriétaire est disposé à partager les coûts ou à effectuer les travaux.
- Assurez-vous que les aménagements respectent le zonage local et les réglementations du bâtiment.
Quelle est la visibilité et la concurrence dans la région ?
- Évaluez la visibilité de l’emplacement depuis la rue, le stationnement, ou d’autres zones fréquentées.
- Analysez la concurrence dans la région et si le marché peut soutenir votre entreprise.
Y a-t-il des restrictions d'utilisation ?
Vérifiez si l’utilisation prévue de l’espace est conforme au zonage local et s’il y a des restrictions sur le type d’activités autorisées.
Quelle est la politique d'assurance du propriétaire ?
- Demandez une copie de la police d’assurance du propriétaire pour vérifier ce qui est couvert.
- Envisagez de souscrire une assurance locataire pour protéger votre entreprise en cas de sinistre.
Comment se passe la négociation ?
Soyez prêt à négocier le loyer, les conditions de sortie, les améliorations du local, et d’autres aspects du bail. Engager un professionnel de l’immobilier commercial ou un avocat spécialisé peut être utile pour vous représenter efficacement dans les négociations.
Posez-nous votre question !
Comment se porte le marché des laveries automatiques en France en 2026
Les indicateurs clés pour comprendre l'essor de ce secteur, qui offre de belles opportunités pour entreprendre, à moindre effort.
S'implanter, Entreprendre, Réseaux, Comprendre la franchise, Secteurs, Se lancer

« Les Américains adorent L’Agence sur Netflix » : La famille Kretz étend son concept d’immobilier de luxe en franchise à l’international
Le CEO de Kretz Real Estate, Alexandre Bruneau, a accordé un entretien à L'Express Franchise pour évoquer les détails de cette nouvelle stratégie de développement worldwide.
S'implanter, International, Entreprendre, Réseaux, Se développer, Histoire d'entrepreneurs

Comment ouvrir une franchise au Sénégal en 2026 ?
Le Sénégal s’impose comme l’un des marchés les plus dynamiques d’Afrique de l’Ouest, avec une croissance économique portée autour de 6 à 7 %.
Ouvrir à l'étranger, S'implanter, International, Entreprendre, Réseaux, Exporter mon concept, Comprendre la franchise, Secteurs

illiCO travaux vise 30 nouvelles agences en 2026 pour accélérer son maillage territorial
illiCO Travaux affiche l'ambition de permettre à 90 % de la population française d’accéder à une agence à moins de 15 minutes de chez elle.
S'implanter, Entreprendre, Réseaux, Secteurs, Histoire d'entrepreneurs

Emma s’implante à Vendenheim, 17e magasin de l’enseigne consacrée au sommeil
S'implanter, Entreprendre, Comprendre la franchise, Actualités

Emma s’implante à Fréjus, 16e magasin de l’enseigne consacrée au sommeil
S'implanter, Entreprendre, Comprendre la franchise

Le parcours de Ludovic Dumont Houel, patron du restaurant Lunicco à Mondeville
À 55 ans, Ludovic Dumont Houel a décidé de tourner une page importante de sa vie professionnelle. Après plus de vingt ans passés dans l’hôtellerie, un secteur aussi passionnant qu’exigeant, il a choisi de se reconvertir dans la restauration en franchise, en intégrant le réseau Lunicco.
S'implanter, Entreprendre, Histoire d'entrepreneurs

La franchise Dairy Queen va-t-elle s’implanter en France en 2026 ?
L'Express Franchise a pu joindre l'enseigne qui indique continuer d'étudier le marché français avec attention.
S'implanter, Entreprendre, Comprendre la franchise

Palais des Thés s’implante à Vannes et renforce son ancrage en franchise en Bretagne Sud
Implantée au 12 rue de la Monnaie, artère piétonne du centre historique à deux pas de la cathédrale Saint-Pierre, cette adresse stratégique conjugue flux touristique, clientèle locale et valorisation patrimoniale.
S'implanter, Entreprendre, Histoire d'entrepreneurs


















